FEA studio | Fundamental Experience of Architecture

2010 | NOOR e MOBIN SWIMMING POOL FOR GIRLS

previousnext

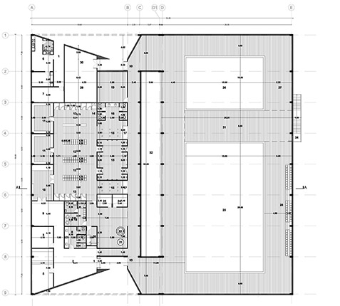
The main issue was being concealed, How can we hold a condition in which we can see but not being seen? How can we create a possibility of observing the nature and seeing the view through a different perspective? The client asked for a swimming pool for girls in Noormobin Educational Complex. The site had an area of 70X130 m (in a 28 hectares field) located at the northern slope, opposite to the designated Boy's Sports building. So the question is how we can design a closed space for the pool, which is concealed from outside and not see-through, but at the same time has access to the wonderful views and outer qualities of that environment. So this opposing relation created the core idea of this project. By reproducing the model of a midsection open space we embraced the idea of "seeing vs. been seen".

previousnext
NOOR e MOBIN SWIMMING POOL FOR GIRLS
NOOR e MOBIN SWIMMING POOL FOR GIRLS
NOOR e MOBIN SWIMMING POOL FOR GIRLS
NOOR e MOBIN SWIMMING POOL FOR GIRLS
NOOR e MOBIN SWIMMING POOL FOR GIRLS
NOOR e MOBIN SWIMMING POOL FOR GIRLS
NOOR e MOBIN SWIMMING POOL FOR GIRLS
NOOR e MOBIN SWIMMING POOL FOR GIRLS